Nieuwbouw en parkeren aan Vlierestraat kunnen anders
Vijf betrokken buurtbewoners spraken woensdag 22 december met 5 mensen van Woonwaarts / OBG om te bezien of voor aanzicht/zicht op de Koningstoren en parkeren betere oplossingen mogelijk zouden zijn. Het was een vervolg op een eerder gesprek op 23 november, zie verslag hier.
Mogelijkheden voor afwisseling en zicht op Koningstoren
Voor het zicht op onze karakteristieke toren waren drie nieuwe ideeën aangeleverd; het gebouw een halve meter lager plaatsen, een of twee leefruimtes doorzichtig uitvoeren en het gebouw herinrichten zodat op één plek de 2e verdieping een hele leefruimte naar achteren zou komen te liggen. Met die doorkijk zou je ook een interessante afwisseling in de massale ca 70 m brede instituutsgevel krijgen. (zie eerste afbeelding)
Architect Coen Koenders vertelde dat de eerste twee suggesties geen beter zicht zouden opleveren en de derde wel, maar te duur zou uitpakken. Er zouden dan een of twee appartementen aan de kant van de Dommer bijgebouwd moeten. Mooi zicht op klok en toren maar ook erg duur. De voorgevel wilde hij sowieso nog uitwerken tot een afwisselend geheel. Naast het iets hogere entreegedeelte zou hij verschillende raamgroottes en ook nog mooie bakstenen en beplanting gaan gebruiken.
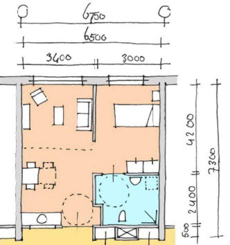
De suggestie om voor de betaalbaarheid van die structurele oplossing de wooneenheden (nu 6,75 bij 7,30m) zo’n 10% kleiner te maken achtte hij niet mogelijk; hij vertelde onder andere al van 6,90 naar 6,75 teruggegaan te zijn (zie 2e afbeelding) en dat bij meer reductie de verzorgers niet meer om het bed zouden kunnen..
Mogelijkheden voor parkeren op eigen terrein met behoud ecologie en groen
Wijkbewoner Jurjen pleitte net als buurtbewoners eerder voor ondergronds parkeren, maar die liepen al op tegen de financiële beperkingen van Woonwaarts door het beperkte budget voor sociale huurwoningen.
Om de ecologische zone aan de westkant te kunnen respecteren, bepleitten bijna alle buurtbewoners om dan te kiezen voor meer haaks parkeren tussen de bomen aan de Vlierestraat, net als bij het parkeervak voor Vlierestraat 1. (zie 3e afbeelding)
Dan heb je die doodlopende parkeerplek aan de westzijde (die ook nog risico van hangjongeren heeft) niet nodig en ook helemaal geen technische aanpassingen als omkering, pergola, verdieping of waterdoorlatende stenen met gras.
Hoewel de gemeente nog niet had laten weten of zij van hun kant kon meewerken aan haaks parkeren, gaf OBG-directeur Mennink aan dat hij voor zijn dag en nacht personeel toch liever eigen parkeerplaatsen op eigen terrein zag.
Dat zou je kunnen opvatten als een pleidooi om toch te zoeken naar mogelijkheden voor de financiering van die structurele en toekomstbestendige oplossing, ondergronds parkeren. De OBG directeur vond de daarvoor benodigde een of twee ton euro's wel veel geld (en dat is het ook), maar wellicht is het toch de moeite om daarvoor te zoeken naar besparingen zonder teveel in te leveren op de kwaliteit van wonen en zorg.
Pas na na overleg met de gemeente kan Woonwaarts/OBG kiezen wat de beste oplossing is voor de ecologische zone en het parkeren.
Woonwaarts heeft in het gesprek geen afspraak gemaakt voor een vervolggesprek met de insprekende buren. Na de jaarwisseling wil Woonwaarts alle 100 directe buren informeren met een nieuwsbrief. Daarin zullen de buurtbewoners waarschijnlijk kunnen lezen welke oplossingen Woonwaarts/OBG voor ecologie, parkeren en aanzicht kan en wil uitvoeren. De meeste buren zijn erg benieuwd welke oplossing Woonwaarts/OBG kiest.